Tervkritika 38 | építés két ütemben
A soron következő Tervkritiká-ra egy több ütemben megépülő – majdnem passzív – családi ház terveit kaptuk meg véleményezésre.
Az alábbi levelet (majd annak kiegészítését) kaptuk a tervek mellé:
Tisztelt Koós Miklós! Rendszeresen olvasom a tervkritika rovatot és mint laikus, sok hasznos dolgot tanultam belőle.
Szeretnénk építkezni, jelenleg a tervezés közepén tartunk, az alaprajz kezd végleges formát önteni. Mielőtt az engedélyezési terv elkészülne, szeretnénk, ha Ön is véleményt mondana róla.
Amit érdemes tudni a házról:
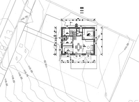
– a telek mérete 26×36 méter
– a helyszínrajzon szereplő alaprajzon a fürdő egy korábbi állapota látható
– célunk egy energiatakarékos ház megépítése
– a telken a házat dél felé forgattuk
– a falak mészhomok téglából készülnek
– a tervezőtől a tető megfelelő túlnyújtását kértük (jelenleg is olyan lakásban lakunk, ahol a tető túlnyúlása nyáron megakadályozza, hogy a déli napsütés fölmelegítse a szobákat, télen viszont a tető alatt a napsugarak fölmelegítik a lakást, ilyenkor a fűtés ritkán kapcsol be)
– a tető nem valódi félnyeregtető, az északi oldal szarufái túlnyúlnak a taréjszelemenen
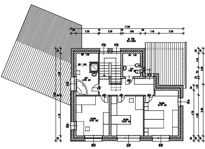
– az engedélyezett építménymagasság miatt van a tető ÉK-i részében egy lépcső
– a garázs külön tömb, így a ház építését követően később építhetjük meg
– az alsó és fölső szinten is monolit vasbeton födém készül
– családunk 4 főből áll, a jövőben elképzelhető, hogy vmelyik nagyszülő hozzánk költözik
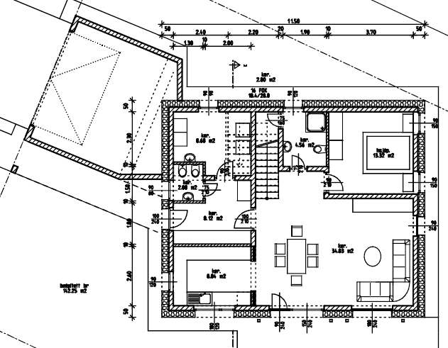
– a konyha, étkező, nappali déli elhelyezéséhez ragaszkodtunk
– a lépcső most az étkezőből vezet az emeletre, de később le lehessen választani
– a fszt-i háló, étkező, nappali bútorai meglévő bútorok, + 2 db 90 cm-es szekrénynek hagytunk helyet a szekrénysor végén ill, a két déli ablak között
– a konyhát és az étkezőt tolóajtó választja el
– a fszt-i szoba szerepe: ha az élet úgy hozza, nagyszülőé lesz, ha a gyerekek nagyobbak lesznek, szülői háló lesz
néhány gondolat a fszt-i fürdőhöz:
– csak zuhanyozni szoktunk, ezért ide nem került kád
– sokat gondolkoztunk, hogy a fürdő ajtaja honnan nyíljon: szebb lenne, ha a hálóból nyílna, viszont ebben az esetben csak a szoba lakója használhatná (ha nagyszülő lakik itt, 4 emberre marad az emeleti fürdő, ez reggel szűkös lehet) egy megoldás lehetne, ha a fürdő előtti beugrót félig egy üvegtégla fallal választanánk le…
————
Néhány kiegészítés fűznék a korábbi levélhez:
– az alaprajzon még nem szerepel, de lesz egy garázsajtó a ház bejárati ajtajától balra lévő beszögelésben
– a fszt-i fürdőszoba ajtaja 90 cm széles lesz
– a fszt-i fürdőszobában látható 160 cm magas ajtó beépített szekrényt takar
– az emeleti fürdő és a fszt-i háztartási helység közé szeretnénk egy szennyesledobót
– kamra nem lesz, végignéztük, hogy a mostani kamrában mit tárolunk – mindez el fog férni a konyhaszekrényben is.
Az alapozáshoz tudni kell, hogy a ház agyagos területen épül, a teherhordó talaj elég mélyen van. A beépíthetőség 15%, a házzal és a garázzsal ezt ki is használjuk. Pincét az ára miatt elvetettük, ill. a házzal egyidőben kellett volna megépíteni, így az ütemezhetőség lehetőségétől is megfosztottuk volna magunkat.
Úgy néz ki, a házat levegővel ill. a leghidegebb napokon kis elektromos rásegítéssel ki lehet fűteni, ezért hagyományos fűtést nem tervezünk.
A részletes bevezető számos elemében felfedezhető az a sokszor hangoztatott elvárás, hogy nem csak a mának építünk, mi lesz a házzal 5-10-15 év múlva? Ha jól van megtervezve, ha a lakói gondolkodnak hosszútávon is, akkor a lakás követni képes a majdani igényeket, ami nagyon fontos, ha nem a legfontosabb egy otthonban.

Amíg korábban viszonylag ritkán találkoztunk a tájolás miatt a telken belüli elrendezés ilyen fontosságán, egyre gyakrabban találkozunk mi is olyan telepítéssel, ahol az épület elhelyezését nem az utcakép, hanem elsődlegesen a tájolás, pontosabban a déli irány szabja meg. Itt is – vélhetően- emiatt lett elforgatva az épület, hiszen más nem indokolná.
Aki passzívházat vagy alacsony energiájú házat szeretne, annak az É-D-i tájolás szinte alapfeltétel, hiszen a téli un. szoláris nyereség így hasznosul a legjobban.
Ehhez persze megfelelően széles telek szükségeltetik, hiszen az átlósan elfordított ház majd 40%-kal több szélességet igényel. Nem biztos hogy ennek egy várostervező örülne, de olyan sok helyrehozhatalan hibát követtek el korszerű városfejlesztés égisze alatt, sokszor olyan erélytelenek voltak az önkormányzatok és ugyanakkor olyan kevés passzívház épül, hogy ez talán megbocsátható lesz.
Ez és a ház kompakt formája mind azt a fajta tudatosságot testesíti meg, amivel egyre többet találkozni, ami jó dolog, és amire külön fel kell hívni a figyelmet. Ez az oka – az ütemezhetőségen túl – a garázs utólagos (az un. termikus burkon kívüli) megépítésének is . Ez persze teljesen önálló falszerkezetet is igényel majd a lakóépület felőli oldalon, hiszen ha szerkezetileg összeépül, akkor ez a „burok” sérülni fog.
A passzívház igényli az egyszerű tömör formát (még ha nem is kizárólagosan csak ilyen formájú lehet), az egyik igen fontos mérőszáma a felület/térfogat aránya (m2/m3). Amíg egy viszonylag nagyobb alapterületű, fszt-es, négyzetalakú ház cca. 1,1 értékű, addig egy köralakú, kétszintes ház esetén ez a viszonyszám cca.0,4 is lehet. Példaként a fotón látható épület A/V értéke 0,76, vagyis nem túl jó, igaz ez nem is passzívháznak épült.
E kissé hosszúra nyúlt bevezetés után, nézzük milyen az épület alaprajzi elrendezése? A bejárattól haladva: a megfelelő méretű és alakú előszobát és WC-t nem illetheti kritika. Jó helyen van a háztartási(?) helyiség és a konyha is. A vitatható dolgok az ajtó után következnek.
Sarkalatos pontnak látszik a fszt-i hálószoba-fürdő, ezt a tervet beküldő is érezte, ezért is tért ki rá ilyen hosszan a levelében, egészen pontosan arra, hogy mik lehetnek a későbbi felhasználás céljai? Én a problémát nem tenném át a jövőbe, ezt MÁR MA meg kellene oldani, mert végül is mindegy, hogy vendégek, szülők vagy nagyszülők laknak a majdan a szobában, az előtte lévő fürdő MOST gyakorlatilag egybenyílik a nappalival és a legminimálisabb intimitást sem tudja biztosítani, ami egy WC berendezéssel is ellátott fürdőtől elvárunk. Ergo ezt szerintem már most, első körben is célszerű volna lezárni egy kis előtérrel. Későbbiekben viszont – egy nagyszülős variánsnál, még ha az átmeneti is – zavaró lehet, hogy mindez csak nappalin keresztül közelíthető meg.
Az másik dolog a lépcső helye, amit bizonyára mindenki másképp szeret megoldani, láttatni vagy éppen eldugni. Itt a lépcsőnek csak egy részét látjuk, a háló és közte lévő rész – akárminek is hívjuk, gyakorlatilag egy holttér. Talán érdemes volna megvizsgálni, hogy mit eredményezne, ha a teljes lépcsőt megtükröznénk, mert így
- a lépcső egyből az előszobából volna indítható, biztosítva a felső szint zavarásmentes megközelíthetőségét
- a nappaliból nem venne el helyet, mi több a nappali hosszfala végig bútorozható lenne
- a fszt-i háló-fürdő elé egy olyan közlekedő kerülhetne, amit akár az előszobából is lehetne nyitni, kissé megszélesítve a fürdő rovására, így akár gardrób szekrényt is el lehetne helyezni benne
- az ily módon lecsökkentett szélességű fürdőszoba benyúlhatna a második lépcsőkar alá (ahogy most a háztartási helyiségben látható)
- a felső szinten nem okoz érdemi változást
A tetőtéri szinten a helyiségek elosztása, a hálók egységes tájolása mintaszerű. A kompakt egységet megtörő lépcsőzést a levélíró is említette és az építménymagasságnak való megfelelősséggel indokolta. Én mégis azt tanácsolnám, hogy érdemes volna azt a számítást még egy kicsit gyötörni, mert ez a lépcsőzés megkérdőjelezi az egész ház kompakt formáját, bonyolítja a megvalósítást és homlokzatilag sem túl előnyös, a hatósági megfelelésnek „nem túl előnyös megoldása”, hogy finoman fejezzem ki magamat.
Végül szóba kell hozzam az épület tetőformáját, ami az egyedüli talányos megoldás számomra az egész épületben. Nem igazán értem ezt az eltolt tetőformát, hiszen szerkezet nem indokolja, ablak nem kerül a 2 tető közé, ebben a formájában kifejezetten előnytelen, lerontja a kompakt ház eddig jól felépített imidzsét. Egy egyszerű nyeregtető sokkal jobban illene a házhoz.
Összefoglalás | jó látni az egyszerűségre való törekvést, mert ez azt igazolja, hogy ez egyben lehet megfelelő élettér egy családnak, ahol persze a racionalitás fontosabb a megjelenésnél. Külön kiemelendő az energiahatékonyságra való törekvés és ha a fent említett földszinti háló.fürdő blokk elhelyezésére is találnak egy jó megoldást, akkor egy igazán jó házban fognak lakni.
Ha szívesen mutatná be másoknak is a készülő/elkészült lakását vagy a házát, vagy kíváncsi arra, hogy mások mit mondanak az Önnek tetsző házról, akkor küldje meg nekünk, mi bemutatjuk és persze véleményt is mondunk róla. Ha a ház nem az Öné, de kíváncsi mások mit gondolnak róla, azt is beküldheti. A diszkréció miatt mindezt megteheti természetesen anonim módon, legfeljebb a város (+kerület) megadásával.
… és Önnek mi a véleménye?
[poll id=”18″]
Hozzászólások (24): megnézem










Butykai Gyula
2009. július 7. kedd 20:19
Tetszik, végre egy olyan ház, ahol gondolnak a hőszigetelésre, és nem 5cm-ben.
Lenne pár kérdésem:
-Milyen típusú nyílászárók lesznek beépítve?
-Mennyi a földszinten és az emeleten a belmagasság? (Csak azért kérdem, mert írták, hogy az építménymagasság miatt került bele a törés a tetőbe. Egy pici belmagasságcsökkentés lehet megoldaná a problémát).
-Pergola a déli oldalon nem fogja árnyékolni az ablakokat télen?
Belső elrendezéssel kapcsolatban Koós úr mindent elmondott, javaslatokat is tett a megoldásra, amivel a földszint biztosan jó lesz. Az emelet meg jó is.
Attila
2009. július 8. szerda 08:46
Egyetértek Koós kolléga tervkritikájával. A külső megjelenésnél megjegyezném a garázs hátsó kapcsolatát a főépülettel. Nekem egy kicsit esetleges. Szerintem egy kicsit tovább kellene gondolni. Egyébként is az utcafronti garázs tömege szerintem nem jó az egész ház tömegéhez képest – kicsit utólagos jellege van (mint ahogy az is). De ez már csak kötözködés.
Hawaii
2009. július 8. szerda 11:36
Egy gondolat bánt engemet: Ágyban, párnák közt halni… ja nem, az egy másik. Ezúttal inkább az, hogy a garázs nem kap természetes fényt, sehol egy ablak. (És itt hadd szögezzem le: nem, nem a garázs a vesszőparipám! Egyszerűen csak a témával kapcsolatos szerény hozzá(nem)értésemmel ezen találtam fogást 🙂 )
.
Kifejezetten tetszik, hogy a lépcsőkarok alatti terek hasznosításra kerültek.
Haamint egyszer eljutok az építkezésig, erre én is külön figyelmet kívánok fordítani..
Koósza ötlet: Ha már a két tetősíknak eltérő magasságban van a gerincvonala, akár tényleg kerülhetne a kettő közti faldarabra néhány lapos ablak az emeleti folyósóra, felülvilágító gyanánt. Cserébe megszünhetne a kis ablak, az észak-keleti sarkon leledző tetősüllyesztéssel egyetemben. Helyén pedig kialakítható egy újabb helység, pl. egy nagyobbacska gardrób; játszósarok a porontyoknak; netalántán kultúrsarok (könyvespolcok/internet)…
Hawaii
2009. július 8. szerda 11:53
Koósza ötlet™ 2: Esetleg a háztartási helységben az ablak helyett lehetne (erkély)ajtó rakni, hogy pl. ruhaszárítót közvetlen ki lehessen tenni a szabadba és/vagy a kertből sáros lábbelivel azon keresztül lehessen bejönni?
.
.
.
U.I.: Remélem Koós Úr nem találja sértőnek az apró szójátékot, hisz természetesen nem annak szántam. Ellenkező esetben elnézést kérek és a továbbiakban hanyagolom az ilyesmit.
tanonc
2009. július 8. szerda 16:46
A garázs eltérő szögben való csatlakozása nyilván az utca vonalát követi, de ha már a házat így helyezték el az említett tájolási okokból, akkor nyugodtan állhatna agarázs is ugyanúgy, van elég hely, hogy ráforduljanak az útról.
tanonc
2009. július 8. szerda 16:50
És szerintem egy ilyen egyszerű kompakt tömeghez jobban passzolna. Habár én továbbra is pártolom a nyitott, fedett beállót, sokkal könnyedebb, és itt egyébként sem szervesül a garázs a házzal, hiszen a rajz és a levél szerint teljesen külön fog épülni.
A zárt garázst általában azzal szokták indokolni, hogy itt vannak a szerszámok, esetleg egy kisebb műhelyasztalka a ház urának, szóval afféle „férfiszentély”. Viszont ez esetben az ablaktalanság probléma. Ha csak autó és kertiszerszám-tárolásra kívánják használni, akkor elmegy.
Koós Miklós
2009. július 8. szerda 18:07
Hawaii, ha továbbra is koósurazol, meg fogok bántódni. Miklós, ha kérhetem.
Hawaii
2009. július 8. szerda 19:52
Sir, yes sir! :o)
Hawaii
2009. július 8. szerda 19:53
tanonc: „ha már a házat így helyezték el az említett tájolási okokból, akkor nyugodtan állhatna a garázs is ugyanúgy, van elég hely, hogy ráforduljanak az útról.”
.
1: Az a gyanúm, nem aratna osztatlan sikert a hölgyvezetők körében. Nem, nem sovinizmus! 🙂 Tapasztalat.
2/a: A garázs bejárati ajtó felőli sarka marad, garázs beforgatva a házzal párhuzamosan. Eredmény: Az előkert az északi, ‘mostoha’ kertdarabot gyarapítja, hangsúlyozza ki. Mintha az előkert a ház ‘mögött’ lenne. A nagykapu majdnem teljesen az utcafront jobb oldalára kerül. Hmm… jobb híján úgy jellemezném: fura.
2/b: A garázs elforgatva a házzal párhuzamba, ám egyúttal eltolva északabbra, hogy jóformán csak a dél-keleti sarka találkozzon a ház észak-nyugati sarkával. Eredmény: Az előkert nagyrészt megmarad a bejárat előtt, de cserébe fel kell áldozni a garázs tetőszerkezetéből fakadó, bejárati ajtó fölötti előtetőt. A garázsból a házba hosszabb úton lehet eljutni (plusz előtető építése?).
Hawaii
2009. július 8. szerda 20:08
tanonc: „A zárt garázst általában azzal szokták indokolni, hogy itt vannak a szerszámok, esetleg egy kisebb műhelyasztalka a ház urának, szóval afféle “férfiszentély”.”
.
Illetve oda lehet rámolni padlás/pince helyett, elhelyezni nagyobb térfogatú mélyhűtőt, stb…
tanonc
2009. július 9. csütörtök 21:33
Jó, azért egy kis törés a behajtóban belefér. De tényleg nem erről kell itt vitázni. Az egy másik hely. 🙂
epitteto
2009. július 13. hétfő 19:13
Butykai Gyulának:
Eddig a Rehau és az Actual adott árajánlatot, még nem döntöttünk. (3 rétegű ablakok)
A fszt-i belmagasság 2,65, az emeleti 2,50, de úgy néz ki, megoldható a tető módosítása.
A pergola nem fog árnyékolni, mert v. lombhullató növénnyel lesz befuttatva, v. télre leszedhető szövet lesz rajta.
epitteto
2009. július 13. hétfő 19:16
Hawaii-nak
Természetesen lesz ablak a gasrázson.
A tetősíkok közötti ablak jó ötlet lenne, ha nem lenne a második szint fölött vasbeton födém – így szerintem nem oldja meg a közlekedő világítását.
Butykai Gyula
2009. július 13. hétfő 20:18
Ezeket a márkákat nem ismerem, én az Internorm-nál vettem meg az ablakokat, ajtókat. Nem minősített passzívház ablakok (műanyag, 80mm profil, U=0,85), de nagyon szépek (kívűl alu, belül tölgy dekor), nagyon jól zárnak (3x gumitömítés), és persze jó az üvegezésük (u=0,6).
Én azért választottam ezt, mert 10év garancia van az ablakok között lévő gáztöltés „megmaradására”, egyéb garanciák mellett.
„Egy visszatérő terv”-kririkában lévő ablakok ajtók (bejárati tiszta aluminium) listaárából egy jó 30%-ot lehetett alkudni sok-sok beszélgetés után, így végűl reális áruk lett. (2,45M)
Sok sikert az építkezéshez!
Hawaii
2009. július 13. hétfő 20:26
epitteto: Nem vagyok szakértő, így rögtön meg is kérdezem: Feltétlenül indokolt oda a vasbeton födém?
Szabóbácsi
2009. július 14. kedd 13:49
Szerintem ha mindenben el/megfogadod Miklós észrevételét, nagyon jó házad lehet: lépcsőtükrözés, fszt-i hálóblokk átalakítása, egyszerű nyeregtető. Az a két tető közti faldarab egyébként sem lebeghet. Öncélú formai megoldás ez a két féltető ami növeli a hibaforrás kialakulását, a kivitelezési költséget, rontja az épület tömegét, arányát. Drága, de legalább rossz.
Ha a garázs amúgy is nyeregtetőt kap, mind látványban, mind energetikai koncepcióban valóban jobban illene ide is a nyeregtető szimmetrikus vagy asszimmetrikus változatban.
Nem értem miért van olyan magasan az ablaxemöldöktől a nyeregtető? Ha a fölső szinten nem lenne külön födém, a kiváltó fölött lenne a talpszelemen, a mennyezet követné a tető síkját, vagy fél méterrel biztosan csökkenthető lenne az építmény magassága ami az arányoknak is jót tenne. És a kisebb építménymagasság belül belmagasság- légtérnövekedést is adna. Statikailag nem téma megoldani.
Továbbá valóban meggondolandónak tartom hogy a garázst érdemes-e kiforgatni a főépület koordinátarendszeréből? Nem könnyű a helyszín, eléggé északi lejtő. Igen bajos lenne valóban lejutni egy pincébe ha az épület is derekasan az út alatt van. Talán meggondolandó emiatt egy még hátrébb való telepítés?
epitteto
2009. július 27. hétfő 17:44
Butykai Gyulának:
Köszönöm a hozzászólásokat és elnézést mindenkitől, hogy csak most reagálok, szabadságon voltam.
az Actual-t ajánlották, szintén nem minősített ablak, de ha minősítésre kerül sor, elfogadják. Hasonló paraméterekkel, fehér színben, bejárati ajtó nélkül én is ilyen ajánlatot kaptam.
epitteto
2009. július 27. hétfő 17:51
Hawaii-nak:
Én sem értek hozzá, nekem azért szimpatikus, mert így – szerintem – egyszerűbbek a csomópontok, könnyebb a légtömör burkot kialakítani. Másrészt jó hőtehetetlensége van, nyáron kevésbé melegszik föl az emeleti rész. Tetőtéri lakásokkal van rossz tapasztalatom. Biztosan megoldható más módon is, ebben jobban bízok – laikusként mondom ezt.
epitteto
2009. július 27. hétfő 18:00
Szabóbácsinak:
Megfogadtam a tanácsokat, egész jól alakul a tükrözés is, a fürdő átalakítása is, így a nappalitól egy kis közlekedő fogja elválasztani.
Annak idején készültek 3d-s képek többféle tetővel, nekem annak idején az itt bemutatott tetszett jobban, de a kritikák fényében ezt újragondolom.
A két tető közti faldarab vmilyen könnyűszerkezetes megoldás lenne, így nem kellene alátámasztani.
Az építménymagasság probléma úgy tűnik, megoldható, így a tetőben/fölső szinten nem lesznek kiugrások.
koos.hu » Tervkritika | Küldje be a saját háza terveit
2009. augusztus 30. vasárnap 18:14
[…] július 6. Tervkritika 38 | építés két ütemben […]