Tervkritika 106 | beadás előtt
Úgy tűnik az oldalhatáros beépítések „túlreprezentáltak” a tervkritika rovatban, mivel ismét egy ilyen tervet kaptunk.
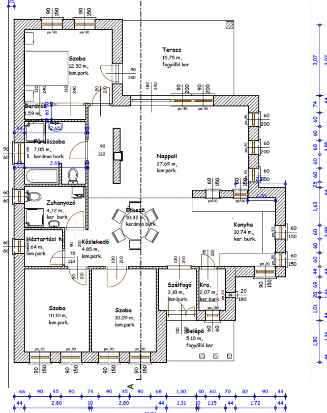
Kedves Koos Miklós,
szeretném ha véleményezné az alábbi tervet. Az alapelvünk a következő volt: 2 gyerekszoba utcára néző, 1 háló, mely elkülönitve a gyerekszobától. Hálóból szeretnénk kijutni a teraszra. Konyha elöl, utcára néző egy kis kamrával,és rálátás legyen a bejáratra. Emellett étkező, hátul nappali a kert felé a terasszal. Oldalhatáros telket vásároltunk, így tisztában vagyunk vele, hogy többnyire kisebb helyiségek kerülhetnek a bal oldalra. A telkünk mérete: 17,5 *62m. Fekvése: Hátul , azaz fentháló felé Észak, nappalinál Kelet, alul a gyerekszobánál nyugat, konyha oldalánál Dél. Mi 100 nm re gondoltunk nettó, de valahogy a tervezőnknek nem sikerül kihoznia a méretet. Szeretnénk a tervet 1-2 héten belül beadni, de úgy látjuk még nem az igényünknek megfelelő, és szeretnénk tökéletesiteni, jó és szakszerű tanácsokat kapni, ezért kerestem fel Önöket.
Várom válaszukat!
Újra is újra megfogalmazódik bennem, de azt hiszem másokban is, hogy miért is küldenek be terveket az építtetők? Nem bíznak a tervezőben, nem merik megmondani neki, hogy nem azt kapták, mint amit szerettek volna vagy éppen nem vallják be saját maguknak sem, hogy nem tudják a VALÓSÁGBAN elképzelni és emiatt görcsölnek, hogy esetkeg rossz döntést hoznak? Bizonyára mindenkinél más a motiváció.
A házról. Úgy vélem, hogy viszonylag kevés módosítással jól használható alaprajz lenne kialakítható. Az elv egyszerű, oldalhatáros a beépítés, így a háló és nappali funkció hosszában különül el, ami teljesen rendben is van, azonban ahhoz, hogy ez a szeparáltság valóban megvalósuljon, a hálóblokk elválasztásán még egy kicsit kellene finomítani.
A fürdő előtti fal által kialakuló kvázi közlekedőt kellene még egy kicsit meghosszabbítani az étkező irányába és az egyszerű közlekedő funkción túl más funkciót is adni neki, pl. gardrób szekrényeket kellene elhelyezni. Igaz, hogy ezáltal növelni kellene a szélességét, de ezzel együtt csökkenne a nappali és különösen az étkező nagy mélysége is. A kialakuló hosszabb gardrób-közlekedő így nagyobb intimitást adna a fürdőnek és a gyerekszobáknak. Maradhatna a nappali és az étkező felé a kapcsolata ajtó nélkül, csak nyílással.
Részben ezzel összefüggően csökkenteni lehetne a konyha szélességét is, mert nem igazán indokolja semmi sem, hogy a nappalihoz képest ennyivel kiugorjon, bár ha a másik oldalon lejjebb kerül a már említett fal, akkor a konyha is maradhatna ebben a formában. Egy beforduló konyhapulttal nemcsak a hasznos munkafelület lenne megnövelhető, hanem a túlzott nyitottság is csökkenthető lenne.
Összefoglalás | A mielőbbi beadásnál fontosabb, hogy MINDEN tekintetben megfeleljen az építtetőknek a majdani házuk és ezt elősegítené, ha pl. minden helyiségbe berajzolnák a legfontosabb bútorokat és egyből látszana, „hol is szorít a cipő”
Ha szívesen mutatná be másoknak is a készülő/elkészült lakását vagy a házát, vagy kíváncsi arra, hogy mások mit mondanak az Önnek tetsző házról, akkor küldje meg nekünk, mi bemutatjuk és persze véleményt is mondunk róla. Ha a ház nem az Öné, de kíváncsi mások mit gondolnak róla, azt is beküldheti. A diszkréció miatt mindezt megteheti természetesen anonim módon, legfeljebb a város (+kerület) megadásával.
… és Önnek mi a véleménye?
[poll id=”18″]
Hozzászólások (37): megnézem



Szabóbácsi
2013. július 1. hétfő 00:41
A 90/150-es ablakok terrorja. Ebből van 7 db, de a 60 szélességűekből is vagy 5 🙁 A sok keskeny ablak iskolás tervezők modorossága. Drága, mert a tok és szárny a drága, nem az üveg, ennek ellenére jóval kevesebb fényt ereszt be és rosszabb a hőszigetelési képessége. A modern, új gondolkodású házaknál többnyire néhány szélesebb ablakot alkalmaznak. Azoknak is jelentős része fix=még nagyobb üvegfelület. A millió ablak ellenére lesz egy nagyon sötét belső étkező. Mivel a hálók, gyakorlatilag a nappaliból-konyhából nyílnak, később mindennaposak lesznek a családi súrlódások, óhatatlanul zavarni fogják egymást. Igazából a metszetvonal tájékán tükrözném a ház funkcióit. Balra utcára konyha, utána étkező, fent nappali. Középen egy elválasztó gardrób/közlekedő, amiből jobbra 3 szép szoba nyílhatna. (+fürdők) Ha 100m2-en ennyi funkció bajosan, de a tervénél kisebb területen még szépen elférne. Ahogy az előbb is írtam, a hólyagtéglákat jó lenne végérvényesen elfelejteni.
Tanúsító
2013. július 1. hétfő 05:58
Ha úgy tekintjük ezt a tervet, mint egy bevásárlólistát, minden OK. Mielőtt nekiindulunk, úgyis kihúzzuk a felét, hozzáírjuk a harmadát, meg még menet közben is jön egy-két apróság. Csakhogy egy építkezésnek így nem lehet nekikezdeni! Nézem a konyhát: hét ablak! Hová kerülhet konyhaszekrény, polc? Tele van falsarokba helyezett ajtókkal… mondjam még? Azért örömöt is találtam benne: azt, hogy nem vagyok sem statikus, sem építész, nem nekem kell a födémet megszerkeszteni. Ahogy Szabóbácsi mondja, ez a 106. egy iskolás terv.
Zoli
2013. július 1. hétfő 11:40
Ahol csak lehetne legalább 150×150 vagy 240 széles ablakot tennék be. Nappalira is legalább 200 széleset
Szabóbácsi
2013. július 1. hétfő 12:09
[re=86015]Zoli[/re]: A 150/150 nagyon gonosz ablak. Buktatva nem ér semmit a szellőzés, oldalt kinyitva belóg a szoba közepébe. balesetveszélyes, kényelmetlen.
Kompromisszumként a három dupla helyett egy-egy 120/150-es BNY ablakot javasolnék. Elegendő lenne és a legolcsóbb megoldás.
A konyha valamelyik falát célszerű lenne kiválasztani fölső konyhabútor elhelyezésére. Vagyis ki kénye gyomlálni a nyílásokat arról a falról. (ez is spórolás)Meggondolandó a szélfogó melletti kamra mellé egy vendégvécé elhelyezése. A terven mindkét wc közvetlenül a nappali légterébe nyílik. Rendkívül kellemetlen tud lenni. Vagy esetleg a jelzett folyosót ténylegesen leválasztani az étkező/nappali térből. A konyha feleslegesen széles, a nappali szűkösen keskeny. Érdemes lenne átgondolni szélességük arányát. Most szinte azonos.
meregzsakk
2013. július 1. hétfő 12:42
Sziasztok! Nekem erről a házról, pontosabban az elvárt igényekről Ger82 háza jut eszembe. Ők 90 nm-en oldották meg a hasonló funkciókat. (megj: utólag a kamrát elhagyná, helyére egy zuhanyzót rakna a vendég wc-be)
https://kepfeltoltes.hu/view/110930/alapk_www.kepfeltoltes.hu_.jpg
Kocsis Krisztián
2013. július 1. hétfő 15:25
Mindenképpen nagyobb ablakok kellenének a gyerekszobákra ( ház arca az utca felé, másrészt nemcsak a gyerekek hanem a szobanövények is jobban érzik magukat)
145cm X 145cm nagyságú 1 vagy 2 szárnyas ablak pedig standard „panel” széria méret… olcsóbb még 3 rétegű üvegezéssel is !!
Amúgy az Oknoplast gyárt már 4 rétegű üvegezéssel nyílászárót 3mm-es edzett üvegtáblákból ( kisebb súly /nagyobb szárnyméret.
Kocsis Krisztián
2013. július 1. hétfő 15:32
(véletlenül rányomtam az enterre 🙂
…jobb hőszigetelési (0,3at is elérheti) értékkel a weboldaluk szerint.
amúgy meg korrekt minőségben jó alapanyagokból dolgoznak.
ger82
2013. július 1. hétfő 21:51
[re=86018]meregzsakk[/re]: nekem is ger82 terve jutott az eszembe 🙂
bobo
2013. július 1. hétfő 23:44
OFF: két 105-ös van?
bobo
2013. július 1. hétfő 23:59
Egy technikai jellegű kérdésem lenne: a másik 105-ös tervnél is láttam, hogy az oldalhatárra 90×60-as ablakok is kerültek. Megváltozott a szabályozás vagy mi ez az új módi? Esetleg a tokokat le lehet számítani a 0,4nm-hez? Akkor azt nem értem, miért nem minden ablak ekkora itt is?
Koós Miklós
2013. július 2. kedd 00:14
[re=86023]bobo[/re]:
én rontottam el. Javitva. Kössz, hogy szóltál
Kriszta
2013. július 2. kedd 15:29
Üdvözlöm Önöket!
Köszönöm a kritikát és a hozzásolásokat. A konyhát mindenképpen beljeb fogni tolni , a nappalit pedig a 3,5 ről legalább 4m re megszélesitjük. A 3 szoba egymás mellett vagy L alakban semmiképpen nem szeretnénk. MI a hálóból szeretnénk kijutni a teraszra, a gyerekszobákat pedig elkülönítve szeretnénk. A konyha kiugrása azért lett ekkora, mert meg akartuk oldani az első teraszra a rálátást, de a kamra betakar. A kamra a legújabb rajzunkon már feljebb lett tolva a konyhapultig.Gondolkodtunk , hogy a kamra is mehetne a fürdők oldalára, mert az a leghűvösebb, de távol van a konyhától. Van jobb ötletük? A konyha és nappali között nem ablakok vannak, csak oszlopok,melyek derékig teljes falúak. A hézagokat valószinű keskenyebbre vetetjük. Mit szólnak , a konyha sarokablakos verziójához?
Igaza van Koos Urnak , féle milyen lesz a valóságban 🙂
Ablakméreteket átgondoljuk!
Köszönjük még 1 szer is!
Tóth Szilveszter
2013. július 2. kedd 16:12
[re=86024]bobo[/re]: én rendszeresen leszámolom a tokot. rá is írom a tervre, hogy hogyan jön ki a 0,4m2 – és rendszeresen átmegy. volt már, hogy 120/60as is átment 😉 bár ott jeleztem a megrendelőnek, hogy ez azért pofátlan kicsit 😉 és lehet emiatt csúszunk – nem volt sürgős az engedély. amúgy az én nyelvtani értelmezésemben egy 210x210es ablak felül 40es bukó és 170es fix résszel simán megengedhető – mondjuk egy folyosóra.
Szabóbácsi
2013. július 2. kedd 16:38
A sarokablak jól néz ki, de dupla áron feleannyi fényt enged be mint egy falközépen lévő ablak. Az igazi sarokablaknál nincs sarokpillér, az ablakok tokjai találkoznak. Úgy néz ki szépen. Legszebben meg ha csak az üvegek találkoznak, de az mifelénk ritka megoldás. A sarokoszlop helyett fönt van egy méretes L alakú kiváltó. Talán érdemes volna meggondolni a kamrát a nappali és konyha között is. Hely volna rá bőven.
Kriszta
2013. július 2. kedd 19:54
Hogy érti Szabóbácsi, hogy a sarokoszlopp helyett fönt van egy méretes L lakú kiváltó? A Kamra a déli oldalon nem rossz helyen van?
Szabóbácsi
2013. július 2. kedd 21:21
Most a terven nem sarokablak van valójában, hanem a sarkon 1-1 ablak. Ezek nekifutnak egy közös pillérnek. Az igazi sarokablak esetében az ablaktokok egymásnak futnak neki pillér nélkül. Ez az igényes, szép, modern megoldás. Viszont ilyenkor az a sarokpillér nem tartja a fölöttes födémet, ezért kell az ablakok fölé egy L alakú (monolit vb.) kiváltó.
A kamra nem egyértelműen van rossz oldalon. Szerencsésebb az északi, de az ablaka felől már tető árnyékolja a falát, kevésbé melexik. Sarokban van, így 2 oldalról „fázik” ami előny. További előny hogy közvetlen kapcsolatban áll a konyhával. Ha nyáron picit melegebb is (nem téma), de ősszel, télen, tavasszal amikor a nap szerepe kevesebb, ez a fekvés szerencsésebb mint a túloldalon, ahol két belső fűtött helyiség közé lenne beékelve.
Kriszta
2013. július 2. kedd 21:43
Üdvözlöm Szabóbácsi!
Gondoltam a kamrára a nappali és konyha közé, de az az oldal déli, ezért vetettük el az ötletet, plussz leárnyékolja a teret. A konyhai sarokablakkal az étkezőt próbálnánk jobban világosítani. És kivülről kicsit modernizálni a házat. Jelen terv szerint a konyhánk 50 cmrel tolódik balra, veszünk el a szélfogóbol is. A nappali pedig 3,5 ről 4 m szélesre nagyobbodik. A 2 mes falban menne egy kémény ahová kandallót szánnánk. Az ajtókat mi kértük igy, hogy falra nyilódjon én nem szeretek ajtó mögé bútort rakni. A hálót is még csökkentjük 1 nm-rel. Mit ért a hólyagtéglák alatt? Üvegtégla?A födém egy olyan megoldással készülne, hogy a tetőszerkezet csak a ház külső falain támaszkodik. (rácsos tartós), melynek 30 nm helyisége padlásnak használható. Többre nincs rakodás céljából szükségünk.
Várom további ötleteiket!
Szabóbácsi
2013. július 3. szerda 09:50
Én a tervet ismertető leírásból azt vettem ki hogy felfelé van észak. Simán ráfért volna a tervre egy észak jel. Az étkező, mely a legjobb ha kertkapcsolatos, sajnos továbbra is sötét, belső marad. Talán érdemes volna meggondolni hogy a nappali (függőleges arányban) lenne úgy a terasz magasságában, alatta az étkező (ajtóval, teraszkapcsolattal) és alatta a konyha kevésbé kiugró, de hasonló vízszintes helyzetben. A ház a T alak helyett zömökebb lenne ami olcsóbb megépítést és kisebb fűtési költségeket jelenthetne, nem lenne sötét belső tere.
Lehet a tetőt bonyolultabb, drágább szerkezettel megépíteni hogy nincs belső székoszlopa, de ha csak egy harmadlagos padlásteret alkot és nem lakóhelyiségeket akkor csak felesleges pénzkidobás.
Hólyagtéglák alatt ezeket a korszerűnek mondott, de valójában semmire sem jó „modern” falazóblokkokat értem, melyeket millió buborékkal tesznek jobb hőszigetelővé és szerkezetileg gyengévé. Vagyis a legjobb hőszigetelési értékkel bíró porotherm-szerű téglák. Tartószerkezeti értékük minimális, hőszigetelési értékük így is gyenge, áruk magas. Semmire sem jók. Nem is véletlenül, gyakorlatilag már eltűntek Európából. Miklós ezen oldalán a közelmúltban olvasható erről. Jó hőszigetelésű fal – mint a passzívházaknál is, de nem szükséges annak lennie – egy tömör, csak szükséges szélességű teherhordó falon vastagabb hőszigetelő réteg. A tömör teherhordó réteg valami olcsóbb tégla (ikersejt, B30) esetleg vasbeton, a hőszigetelés meg általában kívülről a Hungarocell (EPS) valamilyen változata legalább 20cm vastagságban. Lehet még vakolható bazaltgyapot. Elnézést, de egy korszerű, gazdaságos, 5-10 évre előremutató hőszigetelésre NINCS más mód. Ha belegondol, 10 éve még 4-5cm-ekkel szigeteltek, manapság a 10cm is a gyengék között van, mi lesz 2020-ra? Mindjárt itt van.
Kriszta
2013. július 4. csütörtök 15:41
Mi a véleményük a rácsos tartós tertőről?
Rezsnyák Péter kivitelező építész
2013. július 7. vasárnap 13:02
[re=86074]Kriszta[/re]: Picit általános a kérdés! Milyen szempontból, hova miért? Rendszeresen szoktuk alkalmazni, de a rácsostartót az épület egészétől nem lehet függetlenül kezelni.Ha megírja mire kíváncsi, szívesen elmondom az én álláspontomat!
Szabóbácsi
2013. július 10. szerda 10:51
[re=86074]Kriszta[/re]: Mindent a maga helyére. Csarnokok nagy fesztávolságának áthidalásához elég fontos. Egy közepes családiház pusztán lefedése okán, valószínűleg feleslegesen drága. Meg milyen szerkezetből? Fémből? A fától eltérő hőmozgás hibaforrásként jelenhet meg. Fából rácsos? Elég bonyolult ilyen kis méretben. A fenti ház lefedéséhez elég a legegyszerűbb ácsszerkezet pár oszloppal megtámogatva.
Rezsnyák Péter kivitelező építész
2013. július 10. szerda 13:42
[re=86139]Szabóbácsi[/re]: A tetőszerkezet egyben födém is. Én készítettem már fahevederes, és szegezőlemezes verziót is. Egy nagyon nagy családi háznál pedig szeglemezest (Gang Nail).Átlagos családi háznál az ácsok elkopácsolnak vele a helyszínen, és mivel a födém megtakarítható, szerintem egy jó ár/érték arányú dolog lesz.
Memorix
2013. augusztus 4. vasárnap 15:08
Szerintem ez a belső fal a TV -nek igy csúnya… én a következőt tenném…
A nappali falát meghuznám a konyha faláig..igy a konyha nem ugrana ki…hőtechnikailak ez jobb meg oldás…
A mostani fal kezdeményt meghuznám a zuhanyzóig…az igy kialakult folyosót eltüntetném, hogy a mostani fürdőszoba, zuhanyzó fala kimenne egészen eddig a falig…a zuhanyzóba a belébő fentről a szobával szembelévő ajtótól lenne hasonlóan mint lent a háztartási helység, szoba, zúhanyzó..ugyanilyen beugrás lenne fent is…a gardróbnál..igy tisztább lenne az alaprajz…és használhatóbb nagyobb helységeket kapunk…a mostani fürdőszoba, zuhanyzó szoba fala pedig tisztán fal lenne ahol szekrény TV -l elhelyezhető…nincs ajtó…a szélfogó, kamra falát szintén kiraknám a konyha faláig… belépőnek legalább 4,5m kell…kell oda egy a hely a kabátoknak, cipöknek…a kamra pedig pici oda a mostani formában polc sem fér be…az vicc kategoria..max pár befőttet és tésztát lehetne ott tárolni..akkor már egy nagyobb konyha tárólóval sokkal jobb..
Az ablakok lőrés szerűek… oda nem sok fény jutt be…a keretek sokat elvesznek belőele..sötét lesz ott bent minden.. 120X150 és 120×120 ablakokkal érdemes dolgozni… a 120×150 osztott a 120×120 -s búkóny nyiló…de nem osztással mert nagy lesz a keret ismét….
a teraszokat érdemes fedett teraszra rakni..igy azokat is meghuznám a konyha falig…igy egy téglalapott kapsz…amire olcsobb a tető!!!
A terasz oszlopoknak pedig 30×30 beton elemet érdemes használni 2 oszlopot a picinél és 3 oszlopot a nagynál…tartásnak…hőszigetelni is kell az oszlopokat 10 cm hőszigeteléssel…és utánna a ház falával azonos vakolattal érdemes kezelni… igy nem kell karban tartani 4-5 évente a fa oszlopokat…amiket oda irtatok ki…a fa oszlopokat a csapadék éri és folyamatosan kezelni kell öket…és nem sokkal olcsobb mint, sőt hosszabb távon drágább mint a fent leirt megoldás..
A padlóba pedig 12-20 cm hőszigetélst tervezzezek be…ezt nem lehet később nagyobbra cserélni… igy a padló nem lesz hideg a lábnak…érdemes ott padlófűtés tenni a nappaliba,konyhába…a szobákba pedig radiátorost…
Tervkritika
2013. augusztus 6. kedd 17:46
[…] 2013. július 1. Tervkritika 106 | beadás előtt […]
Kriszta
2013. október 7. hétfő 21:51
Üdvözlök mindenkit! Egy olyan kérdésem lenn, hogy a nappalit szeretnénk 15 cm, tehát egy lépcsőfokkal lejjebb süllyeszteni. Kérdésem , hogy melyik praktikusabb, modernebb, esztétikusabb: 1. csak a nappali van lesüllyesztve és a kandalló fal mögötti közlekedő, a háló, a fürdő , az étkező, tehát minden normál szinten áll, vagy 2. a nappali a kandallófal mögötti közlekedővel a nagy fürdővel és a hálóval együtt van süllyesztve? Ln az 1. variáció felé hajlok. Várom a ti véleményeteket!
Köszönettiel!A nappali jelenlegi mérete 4×5,4.
Szabóbácsi
2013. október 7. hétfő 22:18
[re=87010]Kriszta[/re]: Az a lépcsőfok, szívás, balesetveszély, csak hátránnyal jár 🙁
Rezsnyák Péter kivitelező építész
2013. október 7. hétfő 22:37
[re=87011]Szabóbácsi[/re]: Amit Szabóbácsi írt, azt lehet ragozni, csűrni és csavarni, de a tény az tény marad. Előbb-utóbb megöregszünk, a szüleink biztos, és akkor kész a baj. Amíg egy kisgyerek hemperedik egyet, addig nagyapó combnyaktöréssel nyomja az ágyat…Én ha lehet, lebeszélek a szinteltolásról mindenkit.A feleségem egy „K” szegélyen repesztette el a bokáját, ami messze van egy lépcsőtől.(https://www.google.hu/search?q=k+szeg%C3%A9lyk%C5%91&source=lnms&tbm=isch&sa=X&ei=shlTUpX0H87DswaQiYCYBQ&ved=0CAkQ_AUoAQ&biw=1309&bih=710&dpr=1#facrc=_&imgdii=_&imgrc=iYHZUONzr84dbM%3A%3B3yr-ANY4aZyfjM%3Bhttp%253A%252F%252Fwww.solaqua-kert.hu%252Fcontent%252Fimages%252Fcache%252F26611b1923b10d7c14cbbbd9a23399ea_600_400.jpg%3Bhttp%253A%252F%252Fwww.solaqua-kert.hu%252Fkk-terko-terkovezes%252Fegyeb-beton-termekek%252Fk-szegely%3B600%3B400)
bobo
2013. október 8. kedd 00:05
Kis kreativitással ebből a tervből egy nagyon jó elosztású házat is ki lehetne hozni. Lépcső nélkül, természetesen.
Koós Miklós
2013. október 8. kedd 07:41
[re=87010]Kriszta[/re]:
egy lépcsőfok nem lépcső. Ha térbeli elkülönülésre volna szükség, akkor ahhoz legalább 3-4 fok kellene, de csak akkor ha az feltétlenül indokolt (pl. tereplépcsőzés, nagy belmagasság). Ha mindenképpen lépcső lesz, fontos annak a vizuális jelölése is, vagyis hogy az érkező fok, ami már egy síkban van a magasabb padlósikkal, anyagában, szinében elváljon az érkező szint padlójától (pl. megegyezik a lépcső szinével, anyagával).
Kriszta
2013. október 8. kedd 09:34
Köszönöm a válaszokat. 🙂 Senki sem díjazza a lépcsőt. Eléggé lejteni fog a telkünk, a garázsnak a ház mögött már fix helye van. 6 m távolságra lesz és terasz és a garázs közötti szintkülönbséget ami kb 85 cm össze kell hozni, ezért gondoltuk már a házba teszünk egy lépcsőt, és nagyon tetszenek a süllyesztett nappalik. Ha kellene a 2 elképzelés közül választani, mégis melyiket választanák?
Szabóbácsi
2013. október 8. kedd 10:21
Csak egy apró példa. Megy a TV a nappaliban, elbóbiskol. Hirtelen rájön a szükség. Kissé kábán kibotorkálna a wc-re, de abban az egy (2-3) lépcsőben piszkosul elesik. Szerencsés esetben csonttörés nélkül. Rosszabb esetben pl. a szemüveg szára kinyomja az egyik szemét, mint egy ismerősömnél sajnos. Az nem indok hogy MOST nincs szemüveg, mert később LESZ.
Kriszta
2013. október 8. kedd 10:26
Értem 🙂 Csak egy lépcsőfokot tervezünk – 15 cm. És tervezünk világítást a lépcsőbe, hogy körbe a nappali padlóját megvilágitsa.
Szabóbácsi
2013. október 8. kedd 10:38
Az a 15cm = mintha valaki keresztbe tenné a lábát 🙂 Szimulációnak érdemes a mostani lakásba keresztbe letenni egy 15cm magas gerendát a konyha-nappali környékére.
A színes képeken látható életérzések gyakran az ellenkezőjét produkálják a valóságos életben. A látványos dizájn dolgok pokollá teszik az ottlakók életét, a család boldogságának kikiáltott medence átok lesz, a szigetkonyha szétfröcsögi a modern konyhát… Érdemes óvatosan kezelni a szép belső képeket. Kb. annyira becsapósak mint a női magazinok címlaplányai.
Tóth Szilveszter
2013. október 9. szerda 11:42
hogy az eredeti kérdésre is válaszoljunk: valószínűleg a „csak a nappali” süllyesztése lenne a szebb megoldás, bár ezzel azt is eldöntjük, hogy a szobából lépcsőn megyünk ki a teraszra!
a legszebb megoldás a lépcsőmentes tér volna. inkább lépcsőznék a terasz szélén 85cm-t akár minden nap, mint a lakásban. mondjuk én nem félek a napi lépcsőzéstől, 11méter magasan lakom a második emeleten és nincs lift 🙂 nem is tudom elképzelni, hogy valaki a saját lakásában elesik – fiatal vagyok még ehhez. de mi van vendégségkor? mi van, ha ki kell húzni az asztalt és az átlógna a nappaliba?
ugyanakkor számos más belsőépítészeti elem van, amivel a nappali ünnepélyességét, kiemelését fokozni lehet (ami szerintem a valódi vágy), hogy egyet mondjunk, két sorral több téglát kell körberakni és emelni a mennyezeten 50cm-t. egyből olyan érzése lesz az embernek az étkezőben, hogy „az egy fontosabb, szebb tér, oda át kell menni”.
a padlóba, burkolatváltóba meg ma már nem kunszt ledcsíkot tenni, ha multiplex élményben szeretnénk tévézni 😉
Kriszta
2013. október 9. szerda 21:21
[re=87025]Tóth Szilveszter[/re]: [re=87025]Tóth Szilveszter[/re]: Igen, köszönöm, Eldöntöttük. Csak a nappali lesz 15 cm-rel süllyesztve. Köszönöm a véleményeket. Mi is fiatalok vagyunk, bírjuk a lépcsőzést. 🙂
Tanúsító
2013. október 10. csütörtök 06:12
[re=87030]Kriszta[/re]: Bölcs döntés! Mint ahogy az enyém is az volt, amikor -vagy 25 évvel ezelőtt-, hasonló lépcsőzést követtem el. Ma már csak egymást támogatva tudjuk „megmászni” azt az egyetlen fokot!
Tóth Szilveszter
2013. október 10. csütörtök 11:15
Kedves Kriszta! javaslom, hogy a terveket úgy módosítsák még, hogy a süllyesztett rész nyílászárói ne csupán lefelé mozduljanak, hanem annyival magasabbak is legyenek, mint amennyit süllyesztenek, hogy a szemöldökük (felső vonaluk=redőnymagasság) egyezzen a többi ablakéval.
ez az apró módosítás térélményben is hálás, másrészről megmarad a lehetőség, hogy ha mégse jön be, akkor fel lehessen tölteni a nappalit és csak az egyszem teraszajtót kell cserélni emiatt. (pont ezért, meg mert szebb is, a teraszajtót egy ~30cm-es fallal elválasztanám a parapetes ablaktól, ami mellette van.