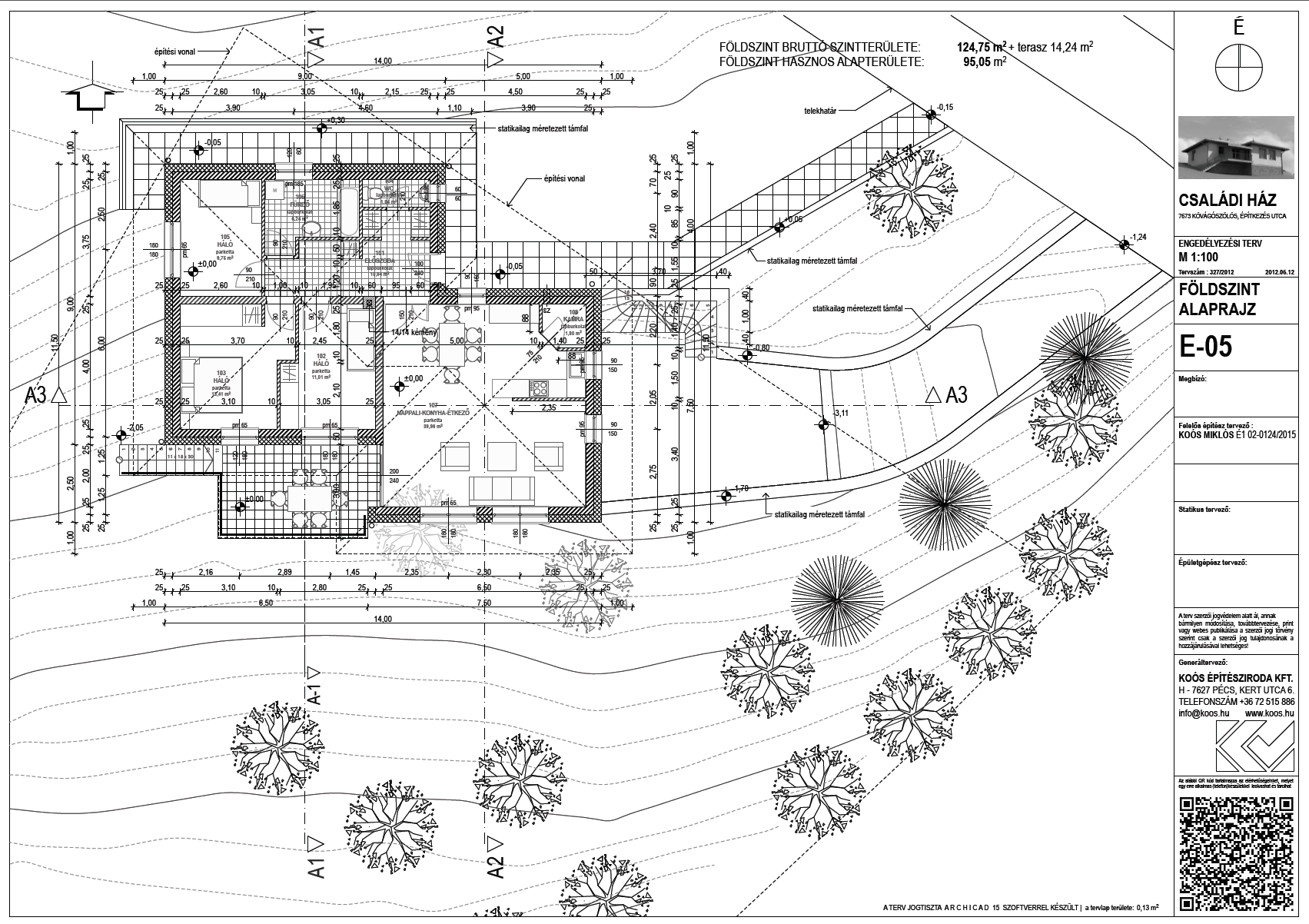
Családi ház Kővágószőlősre
Kővágószőlősre készült az alábbi terv. Az építtető egy fiatal, kisgyermekes házaspár, akik egy nem túl nagy saját családi házat szerettek volna megépíteni. A telek erősen lejtős, szép fekvésű. Az épületet részbeni alápincézéssel terveztük.

Az építtetők passzívház közeli lakóépületet képzeltek el, ennek megfelelően lettek kialakítva a termikus burkolat különféle felületei (U= 1-1,2 W/Km2), az alacsony energiafelhasználás érdekében hővisszanyerős szellőzést és 3 rtgű ablakokat terveztünk. Az energiatudatosságot szolgálta az is, hogy bár nem akartak passzívházat építeni, PHPP számítást kértek. A passzívház közeliséget a PHPP 19 kWh/(m2a) eredménye igazolta.
A kivitelezői árajánlatok nem igazán akartak 45 millió alá menni. Mivel ennyi pénz nem állt rendelkezésre, elkezdődött az igények „finomítása” illetve az alapterület még lehetséges csökkentése.
Majd pár hónapos csend következett és amikor legutóbb beszéltünk, elnézést kértek, hogy ilyen sokáig nem jelentkeztek, de az az igazság, hogy elálltak az építkezéstől. Elmondták, ha le is tudták volna a csökkenteni a költségeket egészen akár 35 millióig, biztosak benne, hogy a beköltözés után talán még 25 milliót sem kapnának érte.
Ezért aztán elkezdtek kész házakat keresni és találtak is Pécsen (nem Kővágószőlősön) kicsit nagyobbat, mint terveztek volna, viszont majdnem fele annyiért (23 millió). 10 éve épült, nem szükséges sehol sem felújítani, viszont azonnal beköltözhető. Igaz nem passzívház szintű, de a rendelkezésre álló pénzügyi lehetőség meghatározta a lehetőségeiket.
Mit lehet mondani erre, a lakásépítés lassan olyan lesz, mint az autóvásárlás, amint kihozom a szalonból, már csak 20 %-kal olcsóbban lehet eladni, pedig egy km-t sem mentek vele?
A lakásépítés akár még 10 éve is értékteremtő beruházás volt, így aki építkezett, az biztos lehetett benne, többért tudja eladni, mint amennyiért megépítette. Ez persze csak a városokra volt akkor is érvényes, hiszen falun építkezni már 10 éve sem érte meg, amiért mégis építkeztek, az a lakhatási szükségszerűség miatt volt.
Hozzászólások (11): megnézem









meregzsakk
2013. szeptember 2. hétfő 12:26
Üdv!
Egy félig alápincézett 95nm-es ház 35 millió? Vagy 45? Hűűűha!
OSman
2013. szeptember 2. hétfő 12:55
Egy ilyen lejtőn, telekárral együtt simán beleszaladhat…:)
meregzsakk
2013. szeptember 2. hétfő 13:01
Mi most vettünk telket, építkezni ugyan csak később akarunk, de ez az ár elég hátborzongató 🙂
meregzsakk
2013. szeptember 2. hétfő 14:05
[re=86823]sby f. j.[/re]: nettót szoktam számolni 🙂 Egyébként nagyon jó az elrendezés. 3 háló és a nappali-konyha-étkező nagyon jól elfért.
Tanúsító
2013. szeptember 2. hétfő 18:38
Szomorúan olvasom Miklós értékre-értékvesztésre vonatkozó fejtegetését!
Sajnos, igaza van…
Sok-sok évvel ezelőtt, ingatlan értékbecsléssel is foglalkoztam (úgy mondják, már csak akasztott ember nem voltam). Alap volt, hogy az újraelőállítási költségből, a létesítmény által megtermelhető (használati-) értékből, és a forgalmi értékből számoltunk. Mára ez úgy módosult, minden csak annyit ér, amennyiért megveszik! Irodaház- és csarnokok a 130 millió Ft újraelőállítási költség ellenére 40 millióért kel el, egy 70 milliós, három szintes családi házért jó, ha 30 milliót kínálnak, és még sorolhatnám…
Mi lesz ebből!?
zeugma
2013. szeptember 3. kedd 02:41
Kár, hogy sok jó ház végül nem épül meg.
Tóth Szilveszter
2013. szeptember 3. kedd 11:56
a cikkben fejtegetett változás sajnos valós jelenség. de az ok nem az, hogy az építőipar változott, hanem az, hogy a teljes ország a tíz évvel ezelőtti „falu” állapotba süllyedt. mert miért is nem akartak anno falura költözni: mert nincsen munkahely? mert nincsen működő közintézmény? nem akarok politizálásba torkollni (vagy trollkodni;)), de az augusztusig elmaradó első szúnyogirtás, az, hogy a 8. kerületben tavaly egyszerűen csak úgy elmaradt az évenkénti lomtalanítás, hogy iskolák hipp-hopp megszűnnek – no és persze mindenki tudja milyen világa van ma az álláskeresőknek… – szóval falu lettünk mind.
ott, ahova költözni akarnak az emberek, figyeljétek meg, még mindig rentábilis a családiház-építés, csak ez a hely most nem Magyarországon van.
Epitesziikon
2013. szeptember 4. szerda 09:27
fontos tény lehet az is hogy a legolcsóbb házak sohasem a domboldalba készülő házak lesznek. Többlet földmunka, nagyobb. már már emeletnyi lábazati falak….De természetesen Vehetek Audi A8 W12 biturbó dízelt ( ami 4 litert fogyaszt) hogy spóroljak, de lehet egy A3 2,0 benzinessel számtanilag ugyanott vagyok ? Azaz a nagyon passzívház szemléletnek is ár van, tehát azt is mértékkel kell alkalmazni. Okosan kell. :).
Tóth Ákos
2013. szeptember 6. péntek 08:34
SZERVUSZ MIKLÓS!
A metszeten, ha a falazat kezdő sorát habüveg elemekből tervezed meg (pl.: https://rwbautech.hu/termeklista/ho_es_hangszigeteles/foamglas#16), akkor a padlóhőszigetelés és a falhőszigetelés gyakorlatilag folyamatosan, megszakítás nélkül tud csatlakozni, és így nincs az a csúnya hőhíd a teherhordó falak padlósíkjánál, hiszen a PTH 25-ös falszerkezet függőleges irányban átmenő üreges szerkezet, ami a talaj hidegét, vmint a pinceszint hidegét felvezeti a falba.
üdv
Koós Miklós
2013. szeptember 6. péntek 09:01
[re=86831]Tóth Ákos[/re]: ez eng terv, ezen ilyen részletekkel nincs értelme foglalkozni. A kiviteliben – ahogy más passzivházaknál is – a hőhídmegszakításra 2 sor Ytongot terveztünk be. A Foamglas és testvérei nagyon jók, de …. drágák.
Családi ház Kővág&oac...
2013. szeptember 9. hétfő 15:11
[…] […]